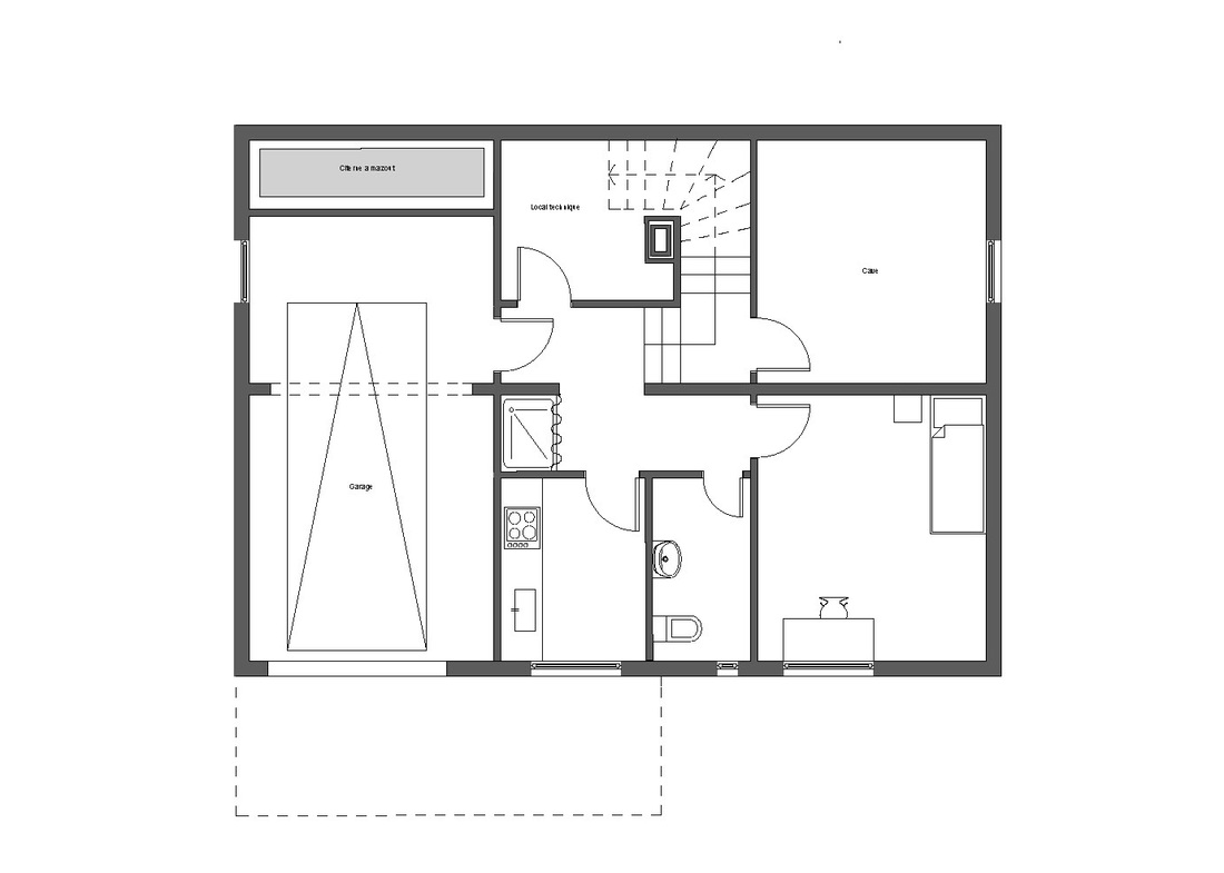
la villa semi-enterrée dans un terrain en pente de la commune de cully était constituée d’un rez-de-chaussée sombre et humide abritant un garage, une cave, un studio et d’un appartement à l’étage composé de deux chambres à coucher, une cuisine, une salle de bains et un salon/salle à manger.
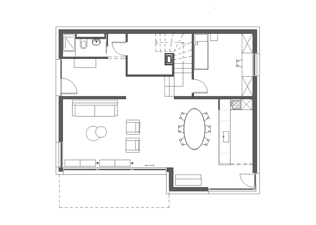
au premier abord, une surélévation de la maison s’imposait, mais, vu les restrictions dans la région (patrimoine UNESCO), nous avons dû trouver une alternative. cette dernière a consisté à faire sortir de terre le rez-de-chaussée de la villa sur les côtés est et ouest, laissant place à de grandes baies vitrées qui apportent non seulement de la lumière mais aussi une vue sur le lac et la vallée du rhône.
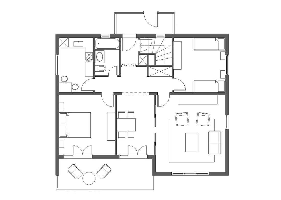
la maison a été entièrement décloisonnée pour créer de grands espaces: le rez qui abritait le garage et les locaux techniques est devenu la zone de jour, salon/salle à manger avec une cuisine ouverte et l’étage la zone de nuit composée d’un espace, dit "de loisirs", ou petit salon intime autour duquel s’articulent les trois chambres à coucher et le bureau.
la maison a été entièrement assainie et mise aux normes actuelles y compris celle du « centime climatique ».
mes prestations pour cette réalisation ont été les suivantes:
étude du projet, conception, élaboration des plans et direction des travaux.