à l'origine, il s’agissait de l’achat d’un des rares terrains encore disponible au sud de la commune de grandvaux qui ne pouvait être acquis qu’avec un projet de villa vaudoise déjà mis à l’enquête publique par un promoteur immobilier.
le défi était de réaliser cette villa en l’adaptant aux goûts de propriétaires sans republier le projet et de profiter au maximum d’un terrain, où la vue côté sud donne sur un grand immeuble d’appartements vétuste.
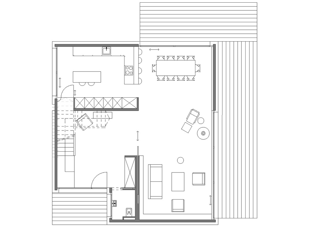
pour répondre aux contraintes, le gabarit de la maison ainsi que les surfaces d’ouvertures ont été conservés mais ces derniers ont été groupés et distribués autrement afin de permettre la création de grandes baies vitrées sur chaque côté de la maison. ceci a permis d'encadrer une vue spectaculaire sur les vignes et le village de grandvaux, un tableau mouvant visible à tout moment de la journée.
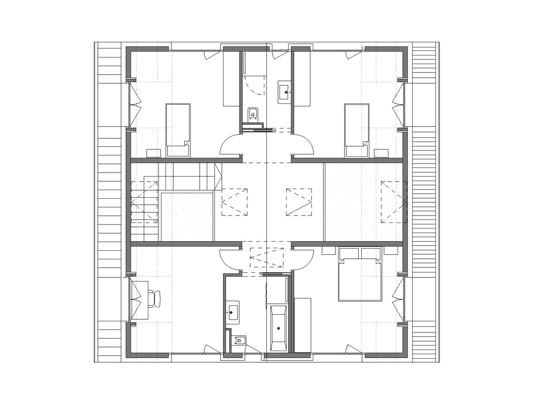
l’intérieur a été entièrement repensé afin de privilégier une circulation fluide qui rend la maison accueillante et fonctionnelle.
les matériaux extérieurs et intérieurs ont été choisis en harmonie avec l'environnement, notamment, les couleurs des feuilles de vigne.
mes prestations pour cette réalisation ont été les suivantes:
étude du projet, conception, élaboration des plans et direction des travaux (sauf excavation et fondations)