le projet s’inscrit dans l’acquisition d’une parcelle située au nord de la ville de Heppenheim, au sein d’un nouveau quartier résidentiel. les propriétaires disposaient d’un modèle de maison individuelle d’environ 140 m², proposé par un promoteur immobilier.
le mandat consistait à adapter cette base existante afin de répondre aux besoins spécifiques des propriétaires, tout en conférant au projet une identité propre. l’enjeu principal était de transformer une typologie standardisée en un lieu de vie personnalisé, en accord avec les usages et les aspirations des habitants.
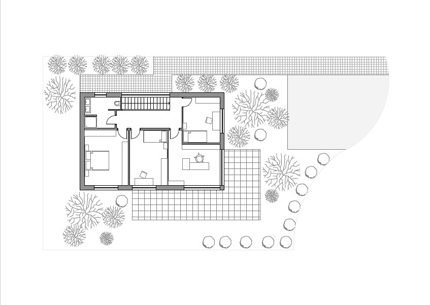
l’intervention s’est concentrée sur une relecture complète des espaces intérieurs, avec une attention particulière portée à la fluidité des circulations. la cuisine a été pensée comme un élément central du projet, devenant un véritable lieu de rencontre et de convivialité, ouvert sur les espaces de vie.
les volumes ont été optimisés afin de renforcer la perception de l’espace et la continuité visuelle entre les différentes fonctions de la maison. une attention particulière a également été accordée à la lumière naturelle, contribuant à créer une atmosphère chaleureuse et accueillante.
le choix des matériaux et des teintes s’inscrit dans une approche contemporaine, sobre et cohérente, visant à apporter une qualité spatiale durable tout en s’intégrant harmonieusement dans le contexte résidentiel environnant.
mes prestations pour cette réalisation ont été les suivantes: étude du projet, conception architectural, élaboration des plans.