création des meubles
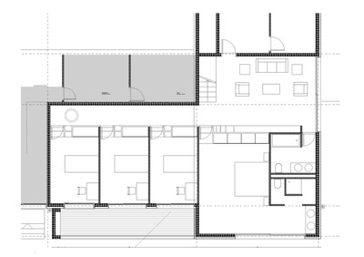
design et conception de divers meubles fixes sur mesure pour articuler les espaces de deux villas mitoyennes.
voir les autres projets
dans le cadre de la contruction d'une villa mitoyenne il s'agissait de redessiner les espaces par la conception de meubles fixes multifonctionnels.
mes prestations pour cette réalisation ont été les suivantes:
étude du projet, conception des meubles fixes et distributions des espaces intérieurs.
le travail a été réalisé au sein du bureau CCHE architecture
Pas d’images pour ce projet.