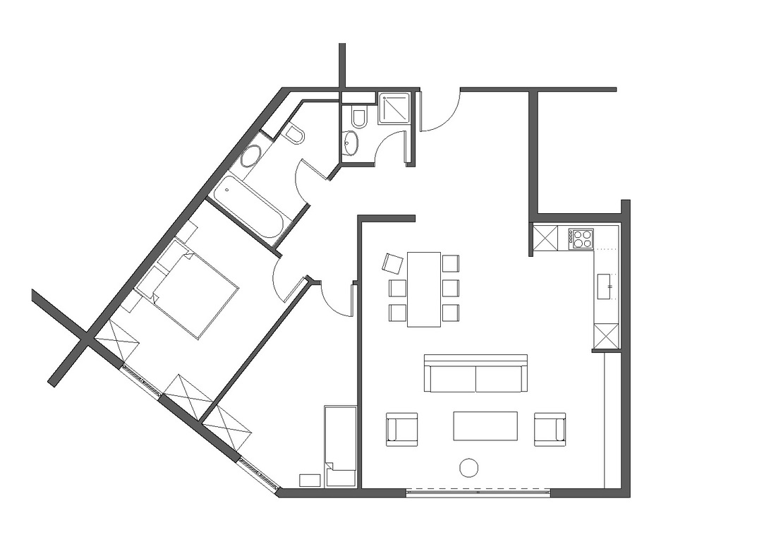
il s’agissait de réaliser un projet d’aménagement d’un appartement de 100 m2 au rez-de-chaussée d’une petite PPE, acheté dans la phase de gros-oeuvre, avec pour contrainte le respect des murs porteurs, des gaines et de l’enveloppe extérieure.
les propriétaires, un jeune couple sans enfants souhaitait adapter l’appartement à leur mode de vie; ils aiment recevoir, tout un gardant leur intimité.
de là ont été prise les premières decisions: il a fallu tout d’abord intégrer la salle de bain à la chambre du couple pour leur permettre de garder leur intimité. par la suite, le décloisonnement du hall entre les chambres s’est avéré nécessaire pour créer une circulation fluide et éviter tout sentiment d’étroitesse, et ainsi rapprocher la chambre d’amis du salon. pour finir, la cuisine a été aménagée de manière à ne pas être accessible depuis le salon sans être visible.
mes prestations pour cette réalisation ont été les suivantes:
étude du projet, conception, élaboration des plans et direction des travaux.